О доме

200 м²

площадь дома

14 900 000 ₽

СТОИМОСТЬ,₽/М²

Центр первого этажа — просторная кухня-гостиная площадью почти 40 кв. м. Прямо из неё можно выйти на вместительную прямоугольную террасу. Оборудуйте здесь место для уютных посиделок и отдыха! Также на нижнем этаже расположились санузел и котельная. 

Планировка первого этажа предлагается в двух вариантах на выбор: 1) дом с гаражом на одну машину и встроенной сауной, состоящей из комнаты отдыха и парной. 2) дом с увеличенным гаражом на две машины — эту опцию наверняка оценят большие семьи. 

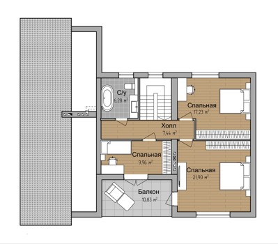
Второй этаж дома образуют три спальни площадью 10 кв. м, 17 кв. м и почти 22 кв. м. Также здесь есть второй санузел. И ещё одна приятная деталь: две из трех спален выходят на балкон. 

Это роскошный вариант семейного коттеджа, современный и функциональный.

Имеется возможность сделать ремонт под ключ, достроить баню, гараж, теплицу

Планировка дома

Из чего строятся
дома

01

Фундамент

  • Денточный фундамент 1.8 глубина
  • бетон марки М 300
  • кирпичный цоколь
  • гидроизоляция
  • монолитная плита

02

Кровля

  • Стропило 3
  • Обрешетка
  • Пароизоляция
  • Утеплитель минеральная вата "Изовер"
  • Снегозадержатель и дымники

03

Коробка

  • газобетонные блоки d500 - 300мм
  • утеплитель минеральная вата 50мм
  • фасад мастер
  • пароизоляция и гидроветроизоляция
  • армопояс
  • оконные конструкции (мультифункциональный пакет)

04

Коммуникации

  • водоснабжение в доме
  • канализация септик и переливной колодец или накопительный колодец
  • газ на границе участка
  • свет на границе участка

05

Забор по периметру

  • жалюзи «Аполло»
  • крыльцо
  • терраса *
  • калитка и ворота *

* в зависимости от проекта

Вы можете выбрать дом в чистовой отделке или с ремонтом.

У нас функциональные дома для комфортной жизни.

Выполним любые виды работ по благоустройству и ремонту.

свяжитесь с нами

Остались вопросы по выбору дома?

Оставьте номер телефона, мы перезвоним вам в ближайшее время.

Спасибо, что оставили заявку.
Мы свяжемся с вами в ближайшее время!

Произошла какая-то ошибка,
попробуйте еще раз!

Заполнить заново