О доме

265 м²

площадь дома

19 900 000 ₽

СТОИМОСТЬ,₽/М²

Дом с предчистовой отделкой!!!

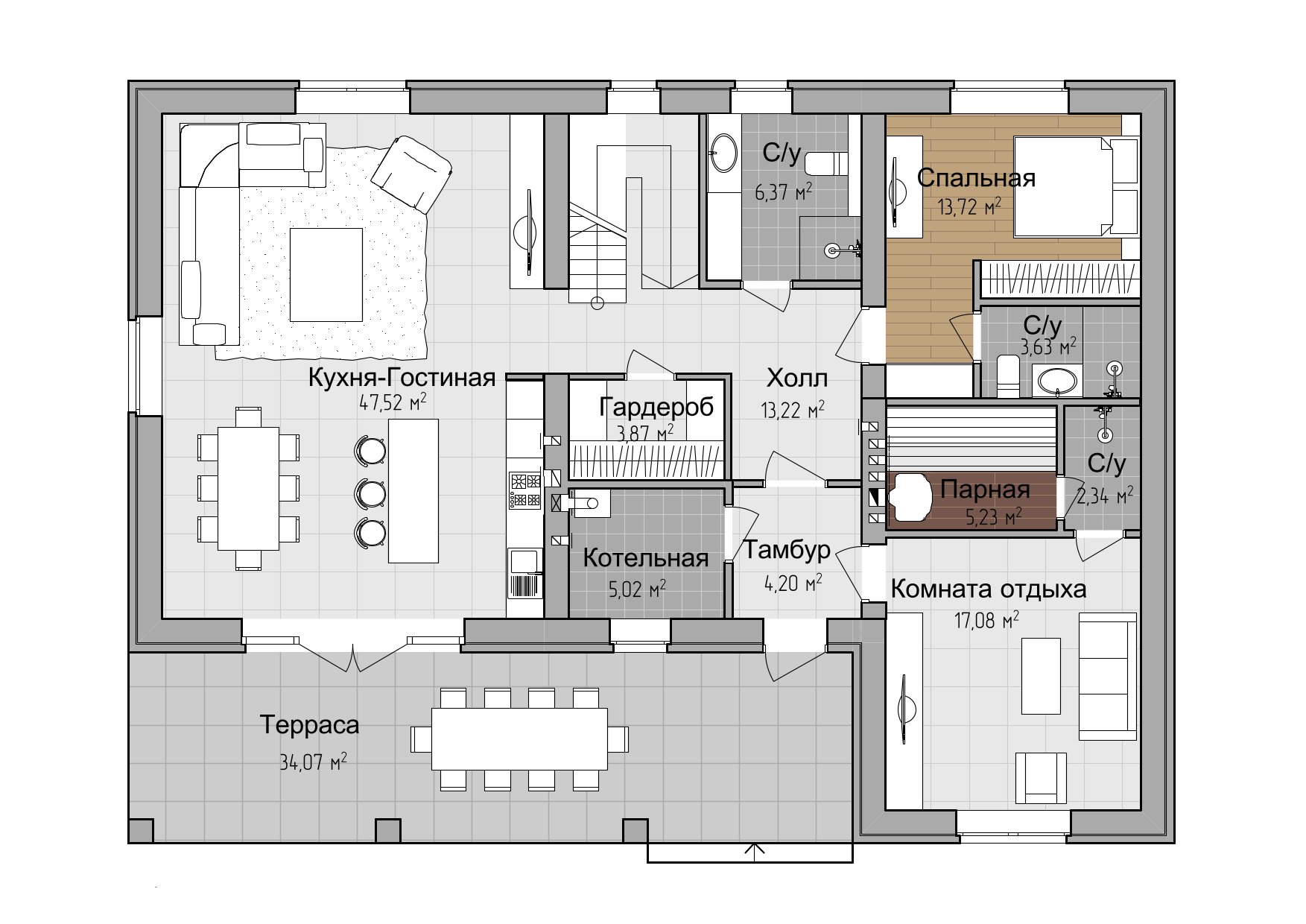
Первый этаж дома четко делится на общее и приватное пространства. В одной части расположена просторная и светлая кухня-гостиная - центр и сердце дома площадью 47,5 кв. м- здесь вы сможете проводить время с друзьями и родными, наслаждаясь простором и светом, а примыкают к ней роскошная терраса с прекрасным видом на лес , где можно насладиться свежим воздухом и природой .

В другой части — уютная спальная комната площадью почти 14 кв. м .Наличие встроенной сауны с комнатой отдыха позволит вам отдохнуть и расслабиться после напряженного дня. На первом этаже располагаются два санузла — совмещенный и раздельный.

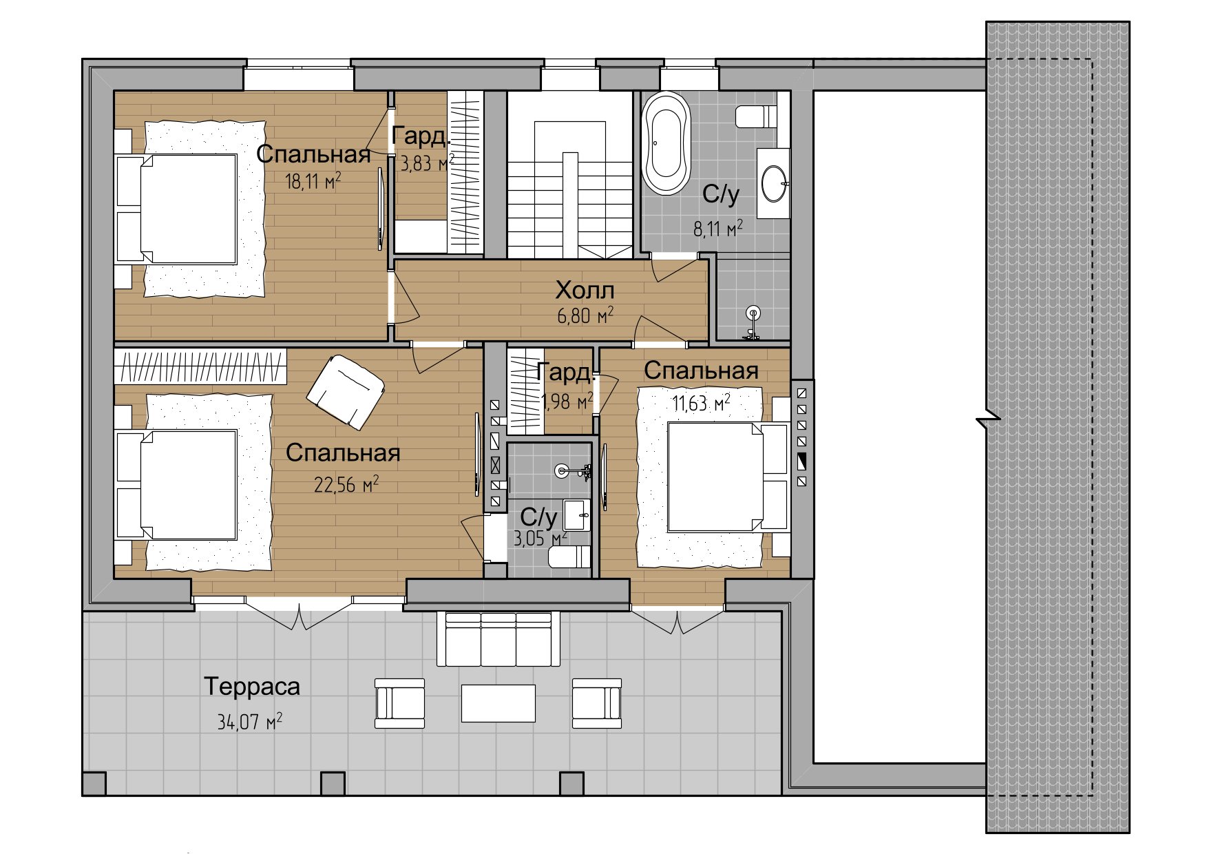
Второй этаж образуют три спальни. Каждая из них удобной прямоугольной формы, между комнатами расположена гардеробная. На втором этаже также два санузла — безусловно, удобное решение для больших семей.

Две спальни выходят на роскошную террасу — это пространство обязательно станет любимым местом отдыха на свежем воздухе. Отличительные черты этой планировки — много света, классические формы комнат, удобная навигация на каждом этаже.

Имеется возможность сделать ремонт под ключ, достроить баню, гараж, теплицу

Планировка дома

Из чего строятся
дома

01

Фундамент

  • Денточный фундамент 1.8 глубина
  • бетон марки М 300
  • кирпичный цоколь
  • гидроизоляция
  • монолитная плита

02

Кровля

  • Стропило 3
  • Обрешетка
  • Пароизоляция
  • Утеплитель минеральная вата "Изовер"
  • Снегозадержатель и дымники

03

Коробка

  • газобетонные блоки d500 - 300мм
  • утеплитель минеральная вата 50мм
  • фасад мастер
  • пароизоляция и гидроветроизоляция
  • армопояс
  • оконные конструкции (мультифункциональный пакет)

04

Коммуникации

  • водоснабжение в доме
  • канализация септик и переливной колодец или накопительный колодец
  • газ на границе участка
  • свет на границе участка

05

Забор по периметру

  • жалюзи «Аполло»
  • крыльцо
  • терраса *
  • калитка и ворота *

* в зависимости от проекта

Вы можете выбрать дом в чистовой отделке или с ремонтом.

У нас функциональные дома для комфортной жизни.

Выполним любые виды работ по благоустройству и ремонту.

свяжитесь с нами

Остались вопросы по выбору дома?

Оставьте номер телефона, мы перезвоним вам в ближайшее время.

Спасибо, что оставили заявку.
Мы свяжемся с вами в ближайшее время!

Произошла какая-то ошибка,
попробуйте еще раз!

Заполнить заново